Loading...

Lépjen kapcsolatba a hirdetővel


VIDEÓ is megtekinthető: VISEGRÁDI - 2 generációs - CSALÁDI HÁZ - kuriózum - nem hegytetőn, nem árterületen!


110 000 000 Ft

  • Pest, Visegrád
  • 263 m2
  • 6 szoba
  • 2 fürdő
Állapot
jó állapotú
Építés éve
1950-1980 között
Komfort
összkomfortos
Légkondícionáló
van
Fürdő és WC
külön és egyben is
Parkolás
önálló garázs
Új építésű
Nem új építésű
Típus
családi ház
Fűtés
gázkazán
Tetőtér
beépíthető
Szigetelés
van
Telekterület (m²)
1073
Szintek száma
2
Pince
van
Üzemeltetési díj
Nincs megadva
Terület (m²)
Nincs megadva
Esetleges építmény területe (m²)
Nincs megadva
YouTube videó link
https://youtu.be/VUit4X_9AAE
Otthon Start
Elérhető

Leírás


ÁRZUHANÁS! - MÁRCIUS 31-ig érvényes az ár!

MEGLEPŐEN
KIS REZSI - NAGY HÁZ - 2 önálló bejáratú (és belső lépcsőházon belül is megközelíthető) lakás, így dupla támogatott gáz- és villanyszámla érvényesül itt!

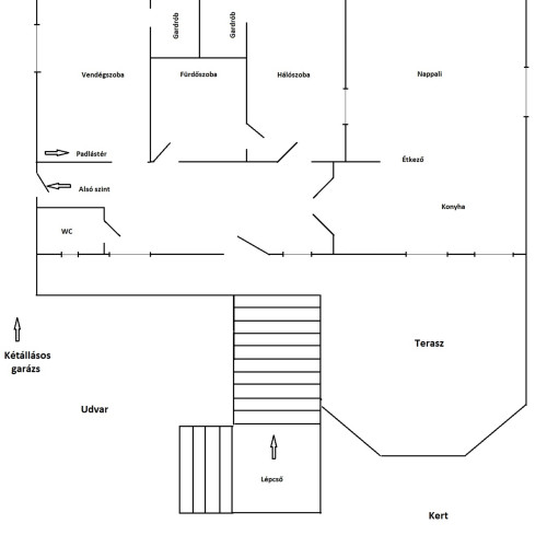
! VIDEÓ, ALAPRAJZOK segítik elképzelni, hogy megfelelhet-e az ÖN elvárásainak ez az álomhelyen lévő álomkertben álló 2 lakásos ház... - lásd a fotók között az alaprajzok és 1 videó megtalálható a hirdetésben!

(További videóval rendelkezem, a ház másik, vagyis a kertkapcsolatos lakásáról is! - kérésre e-mailben elküldöm!)

VISEGRÁDI KURIÓZUM?

Igen, mert kevés eladó ingatlan van Visegrádon! Ráadásul egy madárcsicsergős, mégis központban lévő, páratlanul jó fekvésű, A DUNA vízállásától nem veszélyeztetett az ingatlan!

Az ingatlan Visegrád csendes részén, mégis belvárosában található, kialakult környezetben, panorámás, családi ház besorolású!

Egy nyugalmat árasztó, gyönyörű kertben lévő belső 2 szintes, külső és belső lépcsőn is megközelíthető, így 2 külön bejáratú, 2 független konyhás, 3 fürdőszobás lakásból a kertkapcsolatoshoz és az emeleti lakáshoz is óriási, intim terasz tartozik!
Jelenleg a 3. lakószinten, ami az emeleti lakásból nyíló tetőtér 1 napos, tágas, klímával kiegészített szoba lett kialakítva, így még bővíthető a lakótér.
A kert végében egy gyönyörű, nagy méretű, kifogástalan állapotú borospince bújik meg, mellette tágas fedett tároló szolgálja a vegyes tüzelésű kazánhoz a tüzelőfa tárolását, vagy bármi egyebet, mert tényleg védett az időjárástól ez a +tároló, ha nem elegendő a dupla garázs vagy a mellette lévő kazánház.
A földszinten lévő lakásban egy szaunával kombinált fürdőszoba lett kialakítva.

A garázsban 2 autó kényelmesen, egymás mellett is elfér! - Az árban benne van!

A kertben további autók kényelmesen parkolhatnak!

Az ingatlan rendkívüli helyen van Visegrádon belül: NEM ÁRTERÜLETEN, nem a hegytetőn, gyalogosan könnyen elérhető a tömegközlekedés, bevásárlás stb.

Műszakilag is rendben van a ház, a kert is szépen karbantartott, nyugalmat árasztó!

Teher- és permentes az ingatlan!

Az eladás sürgős! Aki előbb tud dönteni, azé lehet az ingatlan!

A fotók, az alaprajzok és a szöveg szellemi termék, melynek másolása, megjelentetése jogkövetkezménnyel jár.

Videó


Lépjen kapcsolatba a hirdetővel